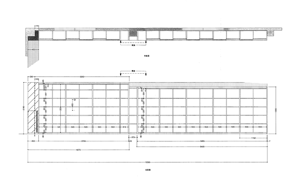
・扉が開けっ放しでも通路の妨げにならない、大開口が出来る引戸。
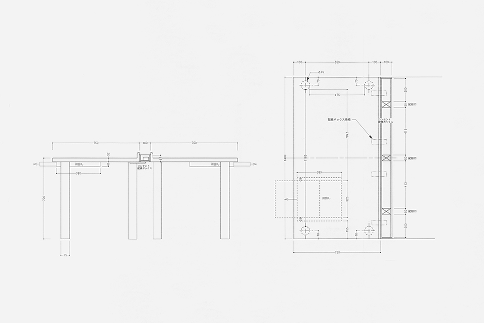
・机はPC配線をすっきり納める配線ボックス付き。
・扉の表面材は、落ち着いた織物調柄
(写真では分かりにくいですが)
事務所家具工事(書庫・机・カウンター他)
<< 一覧に戻る
〒631-0041 奈良市学園大和町2-46 メゾン学園前205号 TEL.0742-46-7902
| トップ
| ギャラリー
|コンセプト
| 会社概要
| アクセス
| お問い合わせ
事務所 家具工事 01
事務所 家具工事 02
事務所 家具工事 03
事務所 家具工事 04
事務所 家具工事 05
事務所 家具工事 06
事務所 家具工事 07
事務所 家具工事 08
事務所 家具工事 09
>
<