〒631-0041 奈良市学園大和町2-46 メゾン学園前205号 TEL.0742-46-7902

| トップ

| ギャラリー

|コンセプト

| 会社概要

| アクセス

| お問い合わせ

GALLERY

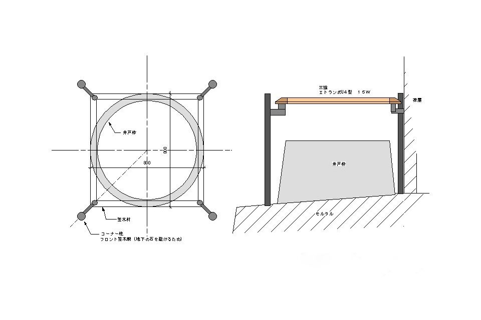
井戸枠

・奈良旧市街地の古民家には、未だ井戸が活かされています。

自宅に水源があるなんて一つの財産でもあると思いますが、最近は建替時に埋めてしまうことが多いです。

この井戸には以前は木で作った手摺りがあったのですが、風雨に負けてしまい今度はアルミでということで設計してみました。

 

ここのお宅は「つるべ」で汲み上げておられるため、桶が取り込み易い様に手摺枠を出来るだけ井戸枠の近くに形作り、支柱は地下の井戸石垣に影響しないようにオフセットした支柱で対応しました。
アルミではあるけれど色合も周囲と調和して良い感じに出来上がり、施主さんも満足の様子。

せっかくの自宅水源を大切に使えば重宝します。

 

夏が来ると思い出すこと、スイカ、ラムネ、井戸に吊して冷やしたこと、麦藁帽子、青い空。

<< ギャラリーに戻る